
Two Bedrooms 1,123 Sq. Ft. Located on the 5th level, The Bailey offers great views of the courtyard and large corner glass windows.
PURCHASED

One Bedroom 783 Sq. Ft. Located on the 5th level, The Aurora offers great views of the courtyard.

Two Bedrooms w/ den 1,463 Sq. Ft. Located on the 5th level, The Hobart offers great views of the courtyard.

Two Bedrooms 1,191 Sq. Ft. Located on the 5th level, The Murray offers great views of the courtyard.
Two Bedrooms 1,191 Sq. Ft. Located on the 5th level, The Murray offers great views of the courtyard.

Three Bedrooms w/ den 2,057 Sq. Ft. Located on the 5th level, The Pasco offers great views of the courtyard as well as two balconies and large corner class windows.
Two Bedrooms 1,273 Sq. Ft. Located on the 5th level, The Beacon offers amazing views of The Railyard, Lincoln’s Downtown and the Haymarket District.

Two Bedrooms 1529 Sq. Ft. Located on the 5th level, The Stanley offers amazing views of The Railyard, Lincoln’s Downtown and the Haymarket District.

Two Bedrooms 1060 Sq. Ft. Located on the 5th level, The Madison offers great views of Lincoln’s Downtown and the Haymarket District.

Two Bedrooms 1151 Sq. Ft. Located on the 5th level, The Linden offers great views of Lincoln’s Downtown and the Haymarket District.

Two Bedrooms 1181 Sq. Ft. Located on the 5th level, The Howell offers great views of Lincoln’s Downtown and the Haymarket District

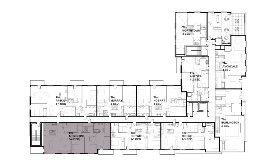
One Bedroom + Den 1,114 Sq. Ft. Located on the 6th and 7th levels, The Aurora offers a great view of The Courtyard.

Two Bedrooms 1,191 Sq. Ft. Located on the 5th level, The Murray offers great views of the courtyard.

Two Bedroom 1,195 Sq. Ft Located on the 6th level, The Gatesburg offers a great view of The Railyard, The Haymarket and Downtown Lincoln. Two Bedroom 1,103 Sq. Ft. Located on the 6th and 7th levels, The Murray offers a great view of The Courtyard.

Two Bedroom + Den 1,204 Sq. Ft. Located on the 6th and 7th levels, The Corwith offers a great view of The Haymarket and Downtown Lincoln.

Two Bedrooms w/ den 1,463 Sq. Ft. Located on the 5th level, The Hobart offers great views of the courtyard.

Two Bedroom + Den 1,515 Sq. Ft. Located on the 6th level, The Chouteau offers a great view of The Haymarket and Downtown Lincoln.

Two Bedroom + Loft 1,780 Sq. Ft. Located on the 6th and 7th levels, The Northtown is one of our two-story, penthouse units. The Northtown offers a great view of The Courtyard area and features large corner windows, two bedrooms and a large loft area.

Three Bedroom + Den – 1,836 Sq. Ft. Located on the 6th and 7th levels, The Argentine offers great views of The Courtyard and West Lincoln. The Argentine offers large corner windows and two large private balconies.

Three Bedrooms w/ den 2,057 Sq. Ft. Located on the 5th level, The Pasco offers great views of the courtyard as well as two balconies and large corner glass windows.

Three Bedroom + Loft 2,043 Sq. Ft. Located on the 6th and 7th levels, The Avondale is one of our two-story, penthouse units. The Avondale offers a great view of The Railyard, Haymarket and Downtown Lincoln as well as two private balconies.

Three Bedroom + Loft 2,899 Sq. Ft. Located on the 6th and 7th levels, The Burlington is one of our two-story, penthouse units. The Burlington offers a great view of The Railyard, Haymarket and Downtown Lincoln as well as two private balconies.

One Bedroom + Den 1,114 Sq. Ft. Located on the 6th and 7th levels, The Aurora offers a great view of The Courtyard.

Two Bedrooms 1,191 Sq. Ft. Located on the 5th level, The Murray offers great views of the courtyard.

Two Bedroom + Den 1,204 Sq. Ft. Located on the 6th and 7th levels, The Corwith offers a great view of The Haymarket and Downtown Lincoln.

Two Bedrooms w/ den 1,463 Sq. Ft. Located on the 5th level, The Hobart offers great views of the courtyard.

Two Bedroom + Den 1,381 Sq. Ft. Located on the 7th level, The Cicero offers a great view of The Haymarket and Downtown Lincoln.

Two Bedroom + Loft 1,780 Sq. Ft. Located on the 6th and 7th levels, The Northtown is one of our two-story, penthouse units. The Northtown offers a great view of The Courtyard area and features large corner windows, two bedrooms and a large loft area.

Three Bedroom + Den – 1,836 Sq. Ft. Located on the 6th and 7th levels, The Argentine offers great views of The Courtyard and West Lincoln. The Argentine offers large corner windows and two large private balconies.

Three Bedrooms w/ den 2,057 Sq. Ft. Located on the 5th level, The Pasco offers great views of the courtyard as well as two balconies and large corner glass windows.

Three Bedroom + Loft 2,043 Sq. Ft. Located on the 6th and 7th levels, The Avondale is one of our two-story, penthouse units. The Avondale offers a great view of The Railyard, Haymarket and Downtown Lincoln as well as two private balconies.

Three Bedroom + Loft 2,899 Sq. Ft. Located on the 6th and 7th levels, The Burlington is one of our two-story, penthouse units. The Burlington offers a great view of The Railyard, Haymarket and Downtown Lincoln as well as two private balconies.